ENGICANT – ENGENHARIA E CONSTRUÇÃO, LDA |

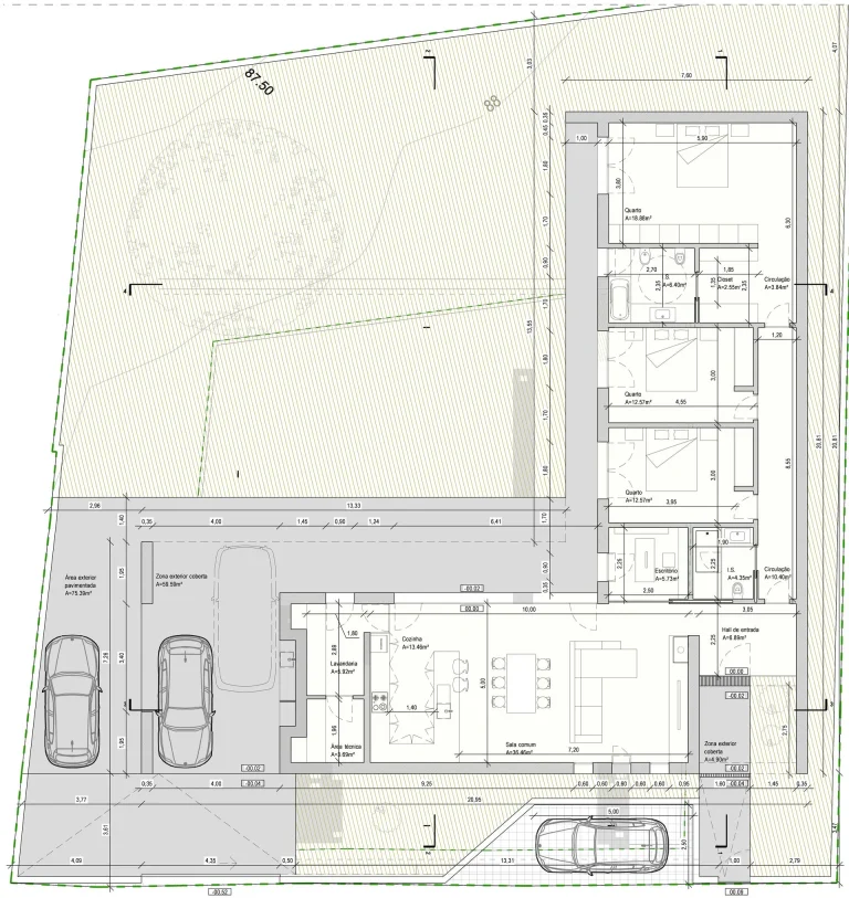
MODELO COIMBRA

T3 | A=250m2

Descrição

O MODELO COIMBRA, é um modelo minimalista, de linhas direitas e de arquitetura moderna. A sua arquitetura em “L”, convida a utilizar o seu terraço, churrasqueira e jardim exterior.

Com possibilidade de adquirir várias tipologias, desde do T1 a T5, com ou sem terraço/piscina, com ou sem garagem e ao mesmo tempo recorrer a um inúmero leque de cores para acabamento exterior. Toda a dinâmica deste modelo, traz com ela a adaptabilidade ao gosto do cliente e consequente otimização de custos de execução.

O sistema construtivo será constituído por pórticos com pilares e vigas em betão armado e lajes aligeiradas, as paredes exteriores compostas por alvenaria técnica e sistema ETIC. No interior as divisórias entre compartimentos serão executadas em alvenaria.

PLANTA - MODELO COIMBRA

planta 1 coimbra
coimbra 1
coimbra 2
coimbra 3
coimbra 4
coimbra 5
planta 1 coimbra

______________________________________________________________

Divisões

10

Quartos

3

Casas de banho

2

Area (m2)

250