ENGICANT – ENGENHARIA E CONSTRUÇÃO, LDA |

MODELO TRÓIA

Descrição

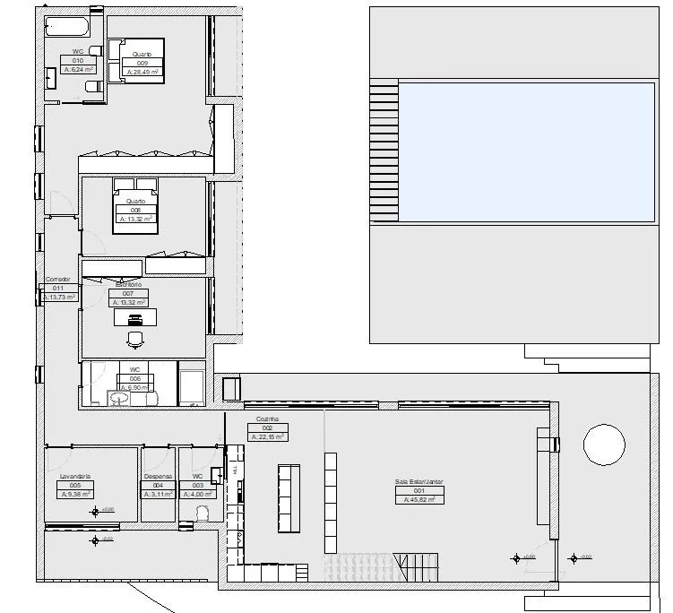
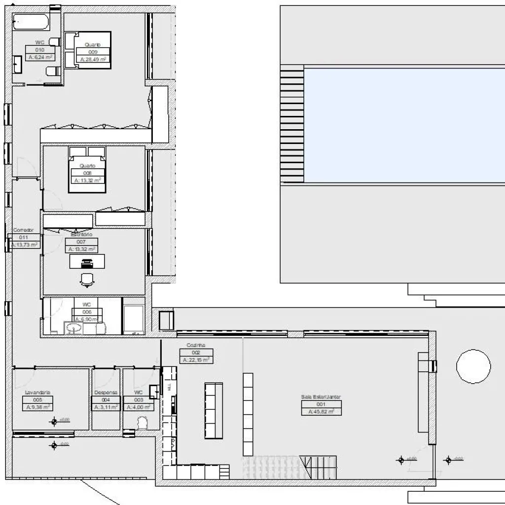
O MODELO TRÓIA, é um modelo em formato “L” pensado especialmente em conforto, espaço e modernidade, podendo o mesmo adquirir várias tipologias, desde de T1 a T5.

Ao nível do Piso 0, oferece 3 quartos, sendo um quarto suite com um WC privativo. A Sala de Estar/Jantar e a cozinha aparecem em formato de “open space” valorizando os espaços e deixando a circulação mais confortável. Possui ainda uma lavandaria de forma a se ter uma zona de tratamento de roupa, um arrumo e um WC de serviço.

Ao nível do Piso 1, existe uma mezzanine que pode ser ocupada por um escritório, biblioteca ou espaço de lazer em função da utilidade pretendida.

Na zona tardoz, sobra espaço para uma bela piscina, ou para um terraço caso seja essa a intenção do cliente, não podendo deixar de referir a existência de uma bela churrasqueira para usar com os amigos e família.

O sistema construtivo será constituído por pórticos com pilares e vigas em betão armado e lajes aligeiradas, as paredes exteriores compostas por alvenaria técnica e sistema ETIC. No interior as divisórias entre compartimentos serão executadas em gesso cartonado

PLANTA - MODELO TRÓIA

troia 1
troia 2
troia 3
troia 4
troia 5
troia 6
troia 7
troia 8
troia 9
troia 10
troia 11
troia 12
troia 13
troia 14
troia 15
troia 16
planta 1 troia
troia 17

______________________________________________________________

Divisões

8

Quartos

3

(variável)

Casas de banho

3

Area (m2)

190

(variável)